ACADEMIC
G-MARKET
AFFORDABLE HOUSING
TOOLS
Photoshop, Illustrator, Revit, Rhino 7COMPLETED
December 2022
The G-Market deeply-affordable housing proposal is a creative approach to tackling housing alienation while serving the needs of the student and immigrant population in Galt and Cambridge. The development facilitates a deep connection between the residents and the public, among residents themselves, and between nature and the residents. This is done through a variety of approaches, including a seasonal market at the ground level, a public courtyard with an outdoor walkway on every residential floor above it, and a large communal space on every residential floor. Within the two kinds of units, residents enjoy a balance between privacy and interaction with a carefully thought out program. With plenty of natural light and cross-ventilation, each unit contributes to the positive mental and physical health of its inhabitants. In addition, the learning center on the ground floor provides language training services and specialized tutoring for the residents, acting as a valuable resource at their disposal. Lastly, a meal service center at the ground floor helps support the ongoing efforts to reduce homelessness in Galt, helping people get back on their feet, and therefore creating a positive impact on the city of Cambridge as whole.
︎
CONTEXT & SITE
FIGURE GROUND PLAN

2 POST SECONDARY INSTITUTIONS
With students in need of housing.
With students in need of housing.
5735 NEW IMMIGRANTS FROM 2016-2021
Small families, couples, individuals in need of housing.
Small families, couples, individuals in need of housing.
CONTEXT AXONOMETRIC
SITE AGGREGATION


PUBLIC OCCUPATION
RESIDENT OCCUPATION
OPERATION OCCUPATION
PROGRAM
GROUND FLOOR PLAN

FAMILY UNIT
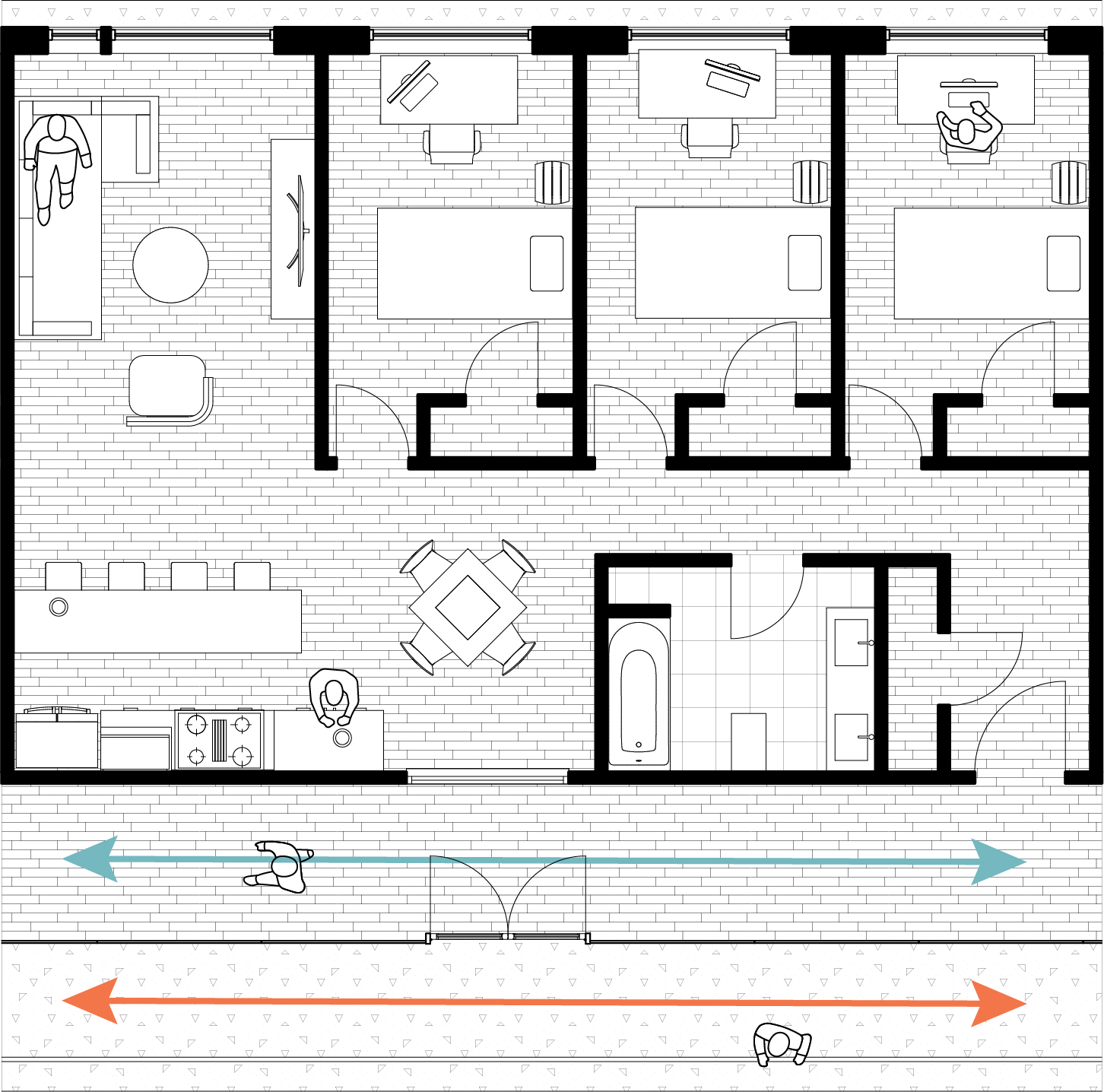
TYPICAL FLOOR PLAN
SINGLE UNIT



3 per typical floor | 96 m2
Layout supports both privacy as well as interaction between residents, allowing it to accomodate more than one demographic.
COUPLE + INDIVIDUAL
The couple can rent the small bedroom out to an individual to offset the cost.
FAMILY OF THREE
Accomodates the extremely common type of small family; two parents and one child.
Layout supports both privacy as well as interaction between residents, allowing it to accomodate more than one demographic.
COUPLE + INDIVIDUAL
The couple can rent the small bedroom out to an individual to offset the cost.
FAMILY OF THREE
Accomodates the extremely common type of small family; two parents and one child.
Outdoor Terrace only on Level 2
3 per typical floor | 96 m2
Space is optimized to house three separate individuals, but is compensated by robust communal circulation programming.
INDOOR HALLWAY
The main path of circulation on each floor, feeds into the cental communal space.
OUTDOOR HALLWAY
A parallel, exposed walkway to facilitate resident relations and a connection to the public.
Space is optimized to house three separate individuals, but is compensated by robust communal circulation programming.
INDOOR HALLWAY
The main path of circulation on each floor, feeds into the cental communal space.
OUTDOOR HALLWAY
A parallel, exposed walkway to facilitate resident relations and a connection to the public.
PROGRAM AXONOMETRIC

PUBLIC PROGRAM
1. Courtyard Space
2. Flexible Seasonal Retail
3. Meal Services
RESIDENT COMMUNAL PROGRAM
4. Building Lobby
5. Bike Storage
6. Learning Center
7. Casual Study & Play Space
8. Outdoor Terrace (only on Floor 2)
9. Outdoor Walkway
RESIDENT PRIVATE PROGRAM
10. Single Units (3 per typical floor)
11. Family Units (3 per typical floor)
BUILDING OPERATIONS PROGRAM
12. Recycling Refuse & Compost
13. Storage Space
14. Loading Zone
OTHER
15. Elevator Shaft
1. Courtyard Space
2. Flexible Seasonal Retail
3. Meal Services
RESIDENT COMMUNAL PROGRAM
4. Building Lobby
5. Bike Storage
6. Learning Center
7. Casual Study & Play Space
8. Outdoor Terrace (only on Floor 2)
9. Outdoor Walkway
RESIDENT PRIVATE PROGRAM
10. Single Units (3 per typical floor)
11. Family Units (3 per typical floor)
BUILDING OPERATIONS PROGRAM
12. Recycling Refuse & Compost
13. Storage Space
14. Loading Zone
OTHER
15. Elevator Shaft
SECTIONS
FRAGMENT SECTION

ECOLOGICAL SECTION

RENDERS & VIEWS



